Porzione di bifamiliare in vendita

Legnano, Via A. Canova
€ 165.000
Prezzo aggiornato
4 locali 4 locali
160 Mq 160 Mq
2 bagni 2 bagni

Porzione di bifamiliare in vendita

Legnano, Via A. Canova

Descrizione annuncio

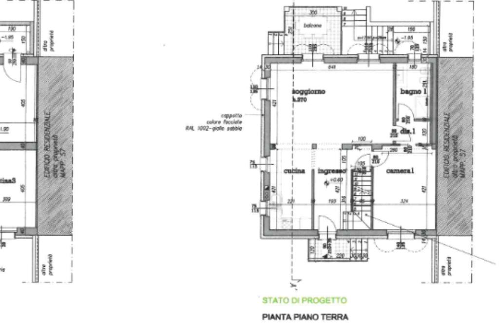
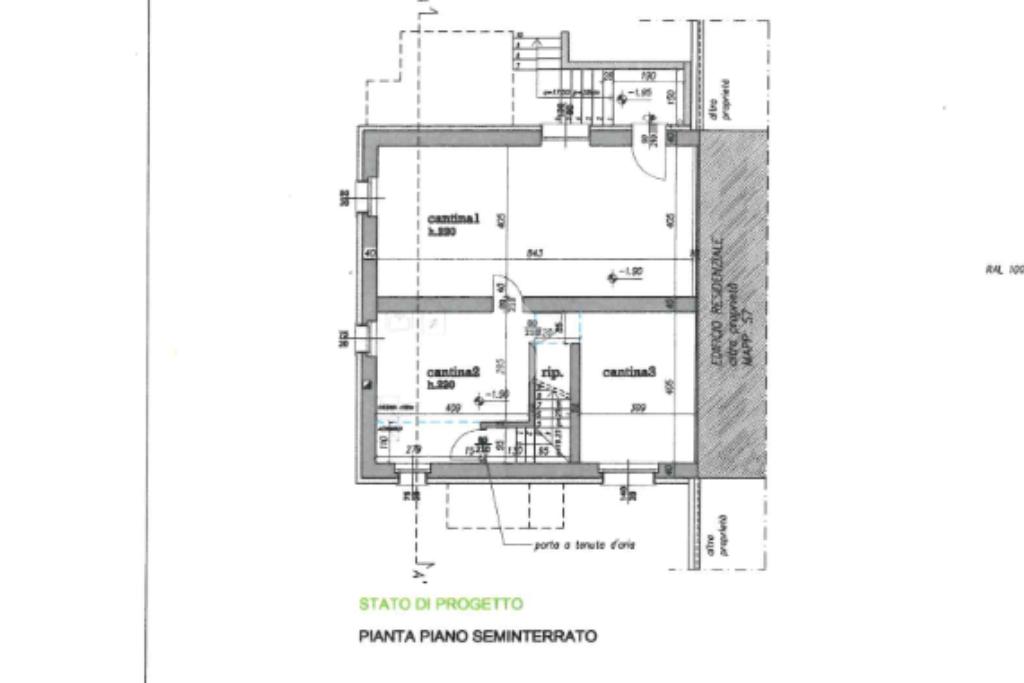
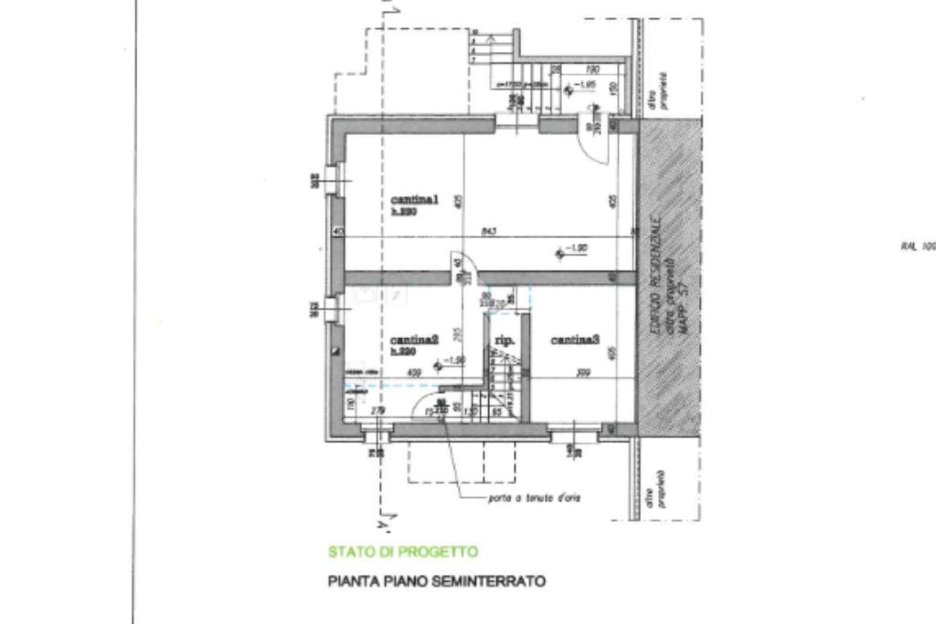
Legnano Zona Frati. Proponiamo casa indipendente con ampio giardino privato. L'immobile richiede una ristrutturazione completa. Dal progetto approvato è possibile ricavare una abitazione così composta: al piano rialzato soggiorno con cucina, una camera e un servizio. Al piano primo due camere con servizio. L'abitazione è interamente cantinata ed è possibile creare un box esterno. Questa soluzione è perfetta per chi cerca una casa da personalizzare, con la possibilità di creare un ambiente su misura per la propria famiglia.

Mostra tutto

Nelle vicinanze

Trasporto pubblico Trasporto pubblico
Legnano
Legnano
1,4 Km
Rescaldina
Rescaldina
3,0 Km
Trasporto pubblico
370 m
Legnano - Via XXIX Maggio ang. Stoppani S. Martino
Legnano - Via XXIX Maggio ang. Stoppani S. Martino
800 m
Ricariche auto elettriche Ricariche auto elettriche
Tigros Castellanza
780 m
Castellanza San Camillo | EnelX
1,1 Km
Castellanza LIUC | EnelX
1,2 Km
Castellanza Testori | EnelX
1,6 Km
Castellanza Brambilla | EnelX
1,8 Km
Scuole Scuole
Scuola Secondaria di Primo Grado Franco Tosi
520 m
Scuola Primaria Alessandro Manzoni
620 m
Giuseppe Mazzini
660 m
Scuola Secondaria di Primo Grado Leonardo da Vinci
690 m
Istituto Maria Ausiliatrice
950 m
Farmacia Farmacia
Farmacia Santa Teresa
440 m
Farmacia Introini
710 m
Farmacia Borgo San Martino
790 m
Farmacia Sempione
1,0 Km
Farmacia
1,0 Km
Ospedali Ospedali
Humanitas Mater Domini
870 m
Ospedale vecchio di Legnano
1,6 Km
Pronto Soccorso Ospedale Civile Di Legnano
1,7 Km
Ospedali
2,5 Km
Supermercati Supermercati
Lidl
370 m
IN's Mercato
530 m
Bottega natura
560 m
MD
640 m
Tigros
800 m
Negozi Negozi
Dispensa senza glutine
310 m
Il Piacere del Pane
820 m
Negozi
920 m
Belli e Monelli
920 m
Panificio Banfi
1,0 Km
Bar Bar
Gelateria Peppy
920 m
Glass - Kitchen & Cocktail
1,0 Km
Rolling Stones
1,0 Km
Land Of Freedom
1,2 Km
Land of Live
1,2 Km
Ristoranti Ristoranti
Montecarlo
280 m
Tao
300 m
Fuddruckers
310 m
La Conchiglia
350 m
Ristorante Hong Kong
640 m
Mostra tutto

Caratteristiche

Rif.:
61130100
Piano:
Su più livelli di 2
Totale piani:
2
Box:
1
Balconi:
1
Terrazzi:
1
Mostra tutto
Prezzo Prezzo
€ 165.000
Rata mutuo Rata mutuo
€ 771 / mese
Spese annue Spese annue
€ 0
Proponi il tuo prezzoProponi il tuo prezzo

Classe Energetica

G
G
G
G
G
G
G
G
G
EP globale non rinnovabile:
235.98 kW h/m² anno
EP globale rinnovabile:
0.00 kW h/m² anno
EP invernale del fabbricato:
EP estiva del fabbricato:
Anno di costruzione:
1950
Riscaldamento:
Assente

Prezzo ridotto di €1 (14%%)

Ti interessa visionare l'immobile?

Fissa un appuntamento  Fissa un appuntamento

Richiedi informazioni

Clicca su Leggi per aprire l'informativa
* Questi campi sono obbligatori

Calcola il tuo mutuo

Semplice e senza impegno
Anticipo

( % )
Mutuo

( % )

pochi semplici passi

inserisci i tuoi dati
Questionario completato
Grazie per aver richiesto un appuntamento senza impegno con un nostro Consulente del Credito e Assicurativo.

Hai inserito correttamente tutti i dati necessari e a breve riceverai una e-mail con un link da convalidare per inviare i tuoi dati.
Affiliato
Andromeda Srl
Corso Magenta, 77 20025 Legnano (MI)

Il nostro staff


  • Ermenegildo Pizzo
    Affiliato

  • Maria Antonietta Distaso
    Responsabile

  • Michele Bollati
    Affiliato

  • Giorgia Ceriani
    Coordinatrice
Corso Magenta, 77 20025 Legnano (MI)
Zona: Legnano Corso Magenta
Mostra su mappa
Orari: da Lunedì a Venerdì 9.30/12.30 - 14.30/20.00 Sabato 9.30/12.30 - 14.30/18.00
Affiliato
Andromeda Srl
Corso Magenta, 77 20025 Legnano (MI)

2026 Tecnocasa Franchising S.p.A. - P. IVA 08365160152 - Via Monte Bianco 60/A 20089 Rozzano (MI). Ogni agenzia ha un proprio titolare ed è autonoma. Privacy policy | Policy utilizzo | Cookie policy