Quadrilocale in vendita

Legnano, Via Francesco Crispi
€ 280.000
4 locali 4 locali
180 Mq 180 Mq
2 bagni 2 bagni

Quadrilocale in vendita

Legnano, Via Francesco Crispi

Descrizione annuncio

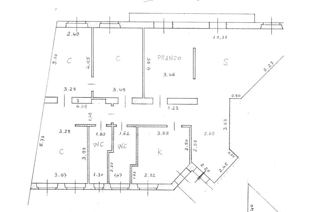
Nel centro di Legnano, proponiamo un ampio quadrilocale di 180 mq, situato al primo piano di uno storico e prestigioso edificio. L'immobile, pur mantenendo il fascino dell'epoca, offre spazi generosi e ben distribuiti. La zona giorno si apre con un ampio soggiorno e una zona pranzo, ideale per momenti di relax e convivialità. La cucina abitabile soddisfa le esigenze di chi ama cucinare. La zona notte comprende tre camere da letto, perfette per famiglie o per chi desidera uno spazio aggiuntivo per studio o hobby. I doppi servizi garantiscono comodità e funzionalità. Un balcone completa l'offerta, offrendo uno spazio esterno privato. Completa la proprietà una cantina. L'edificio è dotato di ascensore, facilitando l'accesso all'appartamento. La posizione centrale permette di godere di tutti i servizi e le comodità che Legnano offre, rendendo questa soluzione abitativa ideale per chi cerca spazio e praticità. Possibilità di acquistare un Box Singolo a parte

Mostra tutto

Nelle vicinanze

Trasporto pubblico Trasporto pubblico
Legnano
Legnano
650 m
Legnano - Largo Tosi
Legnano - Largo Tosi
80 m
Trasporto pubblico
190 m
Ricariche auto elettriche Ricariche auto elettriche
Tigros Castellanza
1,5 Km
Lidl Legnano
1,5 Km
Castellanza LIUC | EnelX
2,0 Km
Castellanza San Camillo | EnelX
2,0 Km
Castellanza Testori | EnelX
2,2 Km
Scuole Scuole
Istituto Canossiano Barbara Melzi
340 m
Scuola Primaria Edmondo De Amicis
470 m
Istituto Tecnico Commerciale e per Geometri Carlo dell'Acqua
470 m
Istituto Tecnico Industriale Statale Antonio Bernocchi
530 m
Giuseppe Mazzini
690 m
Farmacia Farmacia
Farmacia Centrale
180 m
Farmacia del Corso
280 m
Farmacia Sempione
300 m
Farmacia Introini
410 m
Farmacia Centrale San Luigi
490 m
Ospedali Ospedali
Ospedale vecchio di Legnano
1,0 Km
Pronto Soccorso Ospedale Civile Di Legnano
1,1 Km
Humanitas Mater Domini
1,7 Km
Ospedali
1,9 Km
Ospedale nuovo di Legnano
3,0 Km
Supermercati Supermercati
Esselunga
220 m
Issimo
530 m
Di meglio
620 m
IN's Mercato
860 m
Coop
970 m
Negozi Negozi
Via Verdi
60 m
Negozi
60 m
Motivi
60 m
Panificio Banfi
70 m
Brums
80 m
Bar Bar
Rolling Stones
50 m
Triciclo
290 m
The Mode Open Air
360 m
Maridol lounge bar
690 m
New York
730 m
Ristoranti Ristoranti
Mr. Gin
80 m
Pasticceria Gobbi
100 m
L'Antico Teatro
110 m
Vinoteca Legnano
190 m
La Vecchia Legnano
300 m
Mostra tutto

Caratteristiche

Rif.:
61159904
Piano:
1 di 3 con ascensore (Piano basso)
Balconi:
1
Camere da letto:
3
Arredamento:
Assente
Condizionamento:
Assente
Mostra tutto
Prezzo Prezzo
€ 280.000
Rata mutuo Rata mutuo
€ 1.320 / mese
Spese annue Spese annue
€ 3.500
Proponi il tuo prezzoProponi il tuo prezzo

Classe Energetica

G
G
G
G
G
G
G
G
G
EP globale non rinnovabile:
235.45 kW h/m² anno
EP invernale del fabbricato:
EP estiva del fabbricato:
Anno di costruzione:
1930
Riscaldamento:
Centralizzato
Tipo impianto:
A radiatori
Tipo alimentazione:
Metano

Ti interessa visionare l'immobile?

Fissa un appuntamento  Fissa un appuntamento

Richiedi informazioni

Clicca su Leggi per aprire l'informativa
* Questi campi sono obbligatori

Calcola il tuo mutuo

Semplice e senza impegno
Anticipo

( % )
Mutuo

( % )

pochi semplici passi

inserisci i tuoi dati
Questionario completato
Grazie per aver richiesto un appuntamento senza impegno con un nostro Consulente del Credito e Assicurativo.

Hai inserito correttamente tutti i dati necessari e a breve riceverai una e-mail con un link da convalidare per inviare i tuoi dati.
Affiliato
Andromeda Srl
Corso Magenta, 77 20025 Legnano (MI)

Il nostro staff


  • Ermenegildo Pizzo
    Affiliato

  • Maria Antonietta Distaso
    Responsabile

  • Michele Bollati
    Affiliato

  • Giorgia Ceriani
    Coordinatrice
Corso Magenta, 77 20025 Legnano (MI)
Zona: Legnano Corso Magenta
Mostra su mappa
Orari: da Lunedì a Venerdì 9.30/12.30 - 14.30/20.00 Sabato 9.30/12.30 - 14.30/18.00
Affiliato
Andromeda Srl
Corso Magenta, 77 20025 Legnano (MI)

2026 Tecnocasa Franchising S.p.A. - P. IVA 08365160152 - Via Monte Bianco 60/A 20089 Rozzano (MI). Ogni agenzia ha un proprio titolare ed è autonoma. Privacy policy | Policy utilizzo | Cookie policy