Bilocale in vendita

Legnano, Via Flora
€ 185.000
2 locali 2 locali
77 Mq 77 Mq
1 bagno 1 bagno

Bilocale in vendita

Legnano, Via Flora

Descrizione annuncio

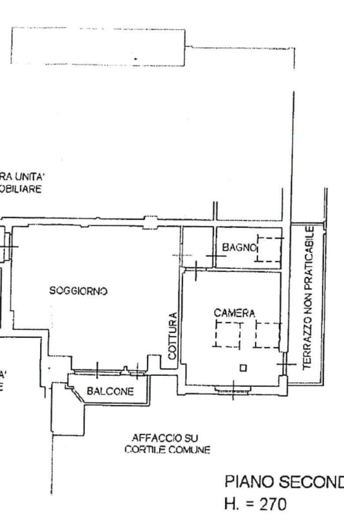
Zona Flora, proponiamo spazioso bilocale al piano secondo con ascensore. Situato in una posizione strategica, comoda sia per raggiungere il centro città che la stazione ferroviaria. L'immobile si apre direttamente su uno spazioso soggiorno con cucina a vista e zona pranzo. La zona notte comprende una camera da letto accogliente e un bagno ben rifinito. Due balconi offrono spazi esterni privati, perfetti per momenti di relax all'aria aperta. Completa la proprietà una cantina e un box ampio per auto e moto garantendo comodità e sicurezza per il parcheggio. Questa soluzione abitativa rappresenta un'opportunità interessante per chi cerca un ambiente moderno e ben collegato. Riscaldamento autonomo. Libero subito.

Mostra tutto

Nelle vicinanze

Trasporto pubblico Trasporto pubblico
Legnano
Legnano
640 m
Castellanza
Castellanza
2,9 Km
Trasporto pubblico
120 m
Legnano - Piazza Monumento, F.S.
Legnano - Piazza Monumento, F.S.
790 m
Ricariche auto elettriche Ricariche auto elettriche
Lidl Legnano
460 m
Legnano Via Sardegna | Enel-X
1,4 Km
Tigros Castellanza
1,7 Km
Castellanza Testori | EnelX
1,8 Km
Castellanza LIUC | EnelX
2,0 Km
Scuole Scuole
Scuola Primaria Giosuè Carducci
260 m
Scuola Media Dante Alighieri
440 m
Istituto Tirinnanzi
830 m
Scuole elementari Arturo Toscanini
980 m
Giuseppe Mazzini
1,1 Km
Farmacia Farmacia
Farmacia della Stazione
400 m
Farmacia Guarnieri
620 m
Farmacia San Paolo
670 m
Farmacia del Corso
990 m
Farmacia Maiocchi
1,0 Km
Ospedali Ospedali
Ospedale nuovo di Legnano
1,8 Km
Pronto soccorso
1,8 Km
Humanitas Mater Domini
1,9 Km
Ospedale vecchio di Legnano
2,3 Km
Pronto Soccorso Ospedale Civile Di Legnano
2,3 Km
Supermercati Supermercati
IN's Mercato
420 m
Esselunga
420 m
Lidl
440 m
Leader Price
540 m
Issimo
1,3 Km
Negozi Negozi
Monica
290 m
Outlet Dolce & Gabbana
370 m
Mitaly
540 m
Panificio Grazioli
550 m
Panificio Rotondi
550 m
Bar Bar
Good Guys
190 m
The Backyard
440 m
Bar Leste
840 m
Circolo Fratellanza e Pace
870 m
Delce Caffè
990 m
Ristoranti Ristoranti
Pizza Pino
120 m
L'altra Botte
170 m
Buffet Gioia
320 m
Ristorante Lin
430 m
Il Pinalino
500 m
Mostra tutto

Caratteristiche

Rif.:
61111421
Piano:
2 di 4 con ascensore (Piano medio)
Box:
1
Balconi:
2
Camere da letto:
1
Arredamento:
Assente
Mostra tutto
Prezzo Prezzo
€ 185.000
Rata mutuo Rata mutuo
€ 862 / mese
Spese annue Spese annue
€ 1.300
Proponi il tuo prezzoProponi il tuo prezzo
Immobile valutato con T·Valuta

Classe Energetica

D
D
D
D
D
D
D
D
D
EP globale non rinnovabile:
92.66 kW h/m² anno
EP globale rinnovabile:
0.00 kW h/m² anno
EP invernale del fabbricato:
EP estiva del fabbricato:
Anno di costruzione:
2008
Riscaldamento:
Autonomo
Tipo impianto:
A radiatori
Tipo alimentazione:
Metano

Ti interessa visionare l'immobile?

Fissa un appuntamento  Fissa un appuntamento

Richiedi informazioni

Clicca su Leggi per aprire l'informativa
* Questi campi sono obbligatori

Calcola il tuo mutuo

Semplice e senza impegno
Anticipo

( % )
Mutuo

( % )

pochi semplici passi

inserisci i tuoi dati
Questionario completato
Grazie per aver richiesto un appuntamento senza impegno con un nostro Consulente del Credito e Assicurativo.

Hai inserito correttamente tutti i dati necessari e a breve riceverai una e-mail con un link da convalidare per inviare i tuoi dati.
Affiliato
Andromeda Srl
Corso Magenta, 77 20025 Legnano (MI)

Il nostro staff


  • Ermenegildo Pizzo
    Affiliato

  • Maria Antonietta Distaso
    Responsabile

  • Michele Bollati
    Affiliato

  • Giorgia Ceriani
    Coordinatrice
Corso Magenta, 77 20025 Legnano (MI)
Zona: Legnano Corso Magenta
Mostra su mappa
Orari: da Lunedì a Venerdì 9.30/12.30 - 14.30/20.00 Sabato 9.30/12.30 - 14.30/18.00
Affiliato
Andromeda Srl
Corso Magenta, 77 20025 Legnano (MI)

2025 Tecnocasa Franchising S.p.A. - P. IVA 08365160152 - Via Monte Bianco 60/A 20089 Rozzano (MI). Ogni agenzia ha un proprio titolare ed è autonoma. Privacy policy | Policy utilizzo | Cookie policy